数据中心的供配电系统
数据中心建设正朝着规模化、科学化、集中化、绿色化方向发展,在此背景下安科瑞希望能够如何通过AcrelEMS-IDC综合能效管理系统帮助数据中心建设者管理者保障数据中心的稳定、安全、持续运行。...
摘 要:数据中心供配电系统是为机房内所有需要动力电源的设备提供稳定、可靠的动力电源支持的系统;是数据中心日常运维的重大支出之一,在数据中心,供配电系统相当于一个人的“心脏和血管”,负责把能量输送到系统的每一台设备。一旦供配电系统出现故障,会导致IT设备断电宕机,产生经济损失和社会影响。故数据中心运维人员和管理者对数据中心的供配电系统是否正常运行尤为关注。
关键词:数据中心;供配电系统;配电监控;能效管理;
1数据中心供配电系统架构
说到数据中心供配电系统,就不得不谈系统架构,关于数据中心供配电系统架构,GB50174 - 2017《数据中心设计规范》在附录“电气”中规定:A级数据中心应满足容错要求,可采用2N系统,也可采用其他避免单点故障的系统配置。
A级数据中心供配电系统主要有3种架构:2N、DR、RR。
1.1 2N系统
由两个供配电单元组成,每个单元均能满足全部负载的用电需要,两个单元同时工作,互为备用。
正常运行时,每个单元向负载提供50 % 的电能,当一个单元故障停止运行时,另一个单元向负载提供100 % 的电能。
这种多电源系统冗余的供电方式,克服单电源系统存在的单点故障瓶颈,增加了供电系统可靠性。但是由于设备配置多、成本高,通常情况下效率比N+X系统低。
1.1 DR系统
DR是Distribution Redundancy的简称,意思是分布冗余。
由N(N≥3)个配置相同的供配电单元组成,N个单元同时工作。将负载均分为N组,每个供配电单元为本组负载和相邻负载供电,形成“手拉手”供电方式。
正常运行情况下,每个供配电单元的负荷率为66%。当一个供配电系统发生故障,其对应负载由相邻供配电单元继续供电。
1.3 RR系统
RR是Reserve Redundancy的简称,意思是后备冗余。
由多个供配电单元组成,其中一个单元作为其它运行单元的备用。当一个运行单元发生故障,通过电源切换装置,备用单元继续为负载供电。
2数据中心供配电系统组成
这里我们说的“数据中心供配电系统”是从电源线路进用户起经过高/低压供配电设备到负载止的整个电路系统,将主要包括市电引入、变电站、高压配电设备——高压变配电系统、柴油发电机系统、自动转换开关系统、输入低压配电系统、不间断电源系统、列头柜/母线槽配电系统和机架配电系统。

2.1高压变配电系统
主要是将市电通过该变压器转换成380V,供后级低压设备用电。常规情况下,数据中心主要采用市电配电,一般可靠性要求数据中心引入两路市电电源,每一路市电电源的供电容量,都需要完全满足数据中心的全部电力需求,两路电源负荷设备输入端自动切换,正常时同时供电运行。
2.2柴油发电机系统
主要用作后备电源,一旦市电失电,迅速启动为后级低压设备提供备用电源。
2.3自动转换开关系统
主要是自动完成市电与市电或市电与柴油发电机之间的备用切换。
2.4输入低压配电系统
主要作用是电能分配,将前级的电能按照要求、标准与规范分配给各种类型的用电设备,如UPS、空调、照明设备等。
2.5不间断电源系统
不间断电源UPS,是一种将蓄电池与主机相连接,通过主机逆变器等模块电路将直流电转换成市电(交流电)的系统设备。主要作用是电能净化、电能后备,为IT负载提供纯净、可靠的用电保护。在数据中心,UPS一般采用一用一备容错配置,且任何一路都可以带起整个核心负载。
2.6列头柜/小母线系统
主要作用是将UPS输出电能的进行分配,将电能按照要求与标准分配给各种类型的IT设备。
2.7机架配电系统
主要作用是机架内的电能分配,通常是采用PDU来实现机架内服务器等IT设备的电能分配。
3安科瑞为数据中心供配电提供整体解决方案
3.1方案组成
安科瑞电气紧跟数据中心发展形式,推出数据中心AcrelEMS-IDC综合能效解决方案,集成了变配电监测、电源备自投、电气接点测温、智能照明控制、电能质量监测及治理、蓄电池在线监测、列头柜监控、智能母线监控以及消防监控等多种子系统功能,能够帮助用户实时掌握数据中心的运行情况,保障数据中心安全可靠的运行,辅助运维团队提升数据中心能效、资源利用率和可用性,提高运维效率并降低。

3.2功能介绍
1)系统主页
展示当前数据中心总能耗,动力能耗,空调能耗,及其他能耗并且计算出当前数据中心实时PUE值,通过仪表盘形式直观展示。

2)变电站综自
对数据中心变电站实时监控,并在一次图显示配电系统当前遥测、遥信数据和状态。
在变配电过程中的各场景,安科瑞可以提供各类硬件产品。如AM系列微机保护装置、APView电能质量在线监测装置、APF&SVG电能质量治理装置、ANDPF精密配电列头柜、ARCM电气火灾监控系统、ASL系列智能照明控制等产品。

3)电力监控
电力监控云平台针对供配电系统的特点,对35KV及以下供配电实施一体化的实时监控,对电网的安全运行提供现代化手段,可实现无人值守。

4)电能质量监测
电能质量在线监测,可以监测电流和电压谐波畸变率、电压暂升暂降暂中断等暂态事件记录、ITIC容忍曲线等。

5)分布式光伏
对逆变器运行和电站进行监测,对电站发电进行统计和分析。

6)UPS监测
系统采集UPS输入、输出端和旁路三相电压、电流、有功功率、功率因数频率,同时监测UPS温度、蓄电池电压、当前负载下的剩余时间等数据。

7)蓄电池监测
展示单体电池电压、内阻和温度,预测电池带载时剩余时间,每节电池数据均可以设置异常报警,及时发现蓄电池异常。

8)列头柜监测
系统可以展示精密配电柜内进线和馈线回路电气参数,包括电流电压功率电能以及开关状态,并可以对数据进行报警设置和分级,数据取自精密配电柜测量模块。
9)母线槽监测
系统可以展示智能小母线的始端箱和插接箱电气参数,包括电流电压、开关状态、插接点温度,并对数据进行报警设置和分级。
10)能源分布
通过平面图显示数据中心能源分布,设备分布情况,并显示设备能耗数据,点击平面图上设备可以进入具体设备监控界面。
11)能耗分析
显示电能消耗日/月/年报表,并可对具体回路选择曲线图、饼图进行展示。对数据中心用电数据进行同比、环比分析比较,查看用电趋势。
12)环境监测
监测数据中心温湿度、开关门、水浸、烟雾、噪声、气体浓度状态等参数。曲线图直观明了,同时支持历史数据查询。
13)空调监测
系统可监测精密空调的回风温湿度,出回水温度,并可以设定精密空调的温湿度,达到更好的控制效果。
14) 智能照明
用户可通过控制面板、人体感应、照度感应、微波感应、上位机系统、触摸屏、手机、平板端等多种控制终端实现灵活多样的智能化控制。
15)电气安全
电气接点温度实时监测,断路器触头、触臂、母排和线缆连接等位置安装无线测温传感器监测接点温度,便于提前发现温度异常导致的事故。
16)消防监控
智慧消防管理云平台是在智慧安全用的基础上,增加了火报系统,智慧烟感和智慧消防用水等设备和系统。实现火灾预防、火情报警和联动控制等功能。
17)故障报警
报警事件分为四级,通过列表显示各类报警事件数量,通过柱状图显示逐日报警数量,提供报警总数以及增长趋势。
18)运维管理
运维管理功能,可针对数据中心各主要设备进行巡检派工,消缺,抢修等维护工作。
3.3典型硬件
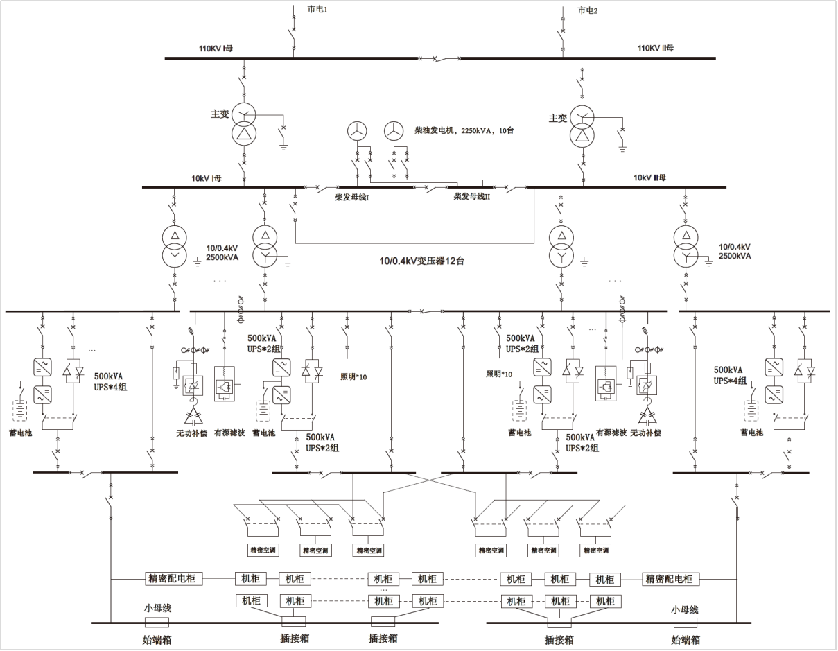
下图为安科瑞AcrelEMS-IDC数据中心综合能效管理系统的系统拓扑图,按照能源的流向、电压等级的变化,数据中心的供配电从市电引入后,需要经过用户变电站、中高压配电室、柴发室、低压配电室、电池室等场景、最后能源流向数据机房给IT设备进行供电。

DAMO开发者矩阵,由阿里巴巴达摩院和中国互联网协会联合发起,致力于探讨最前沿的技术趋势与应用成果,搭建高质量的交流与分享平台,推动技术创新与产业应用链接,围绕“人工智能与新型计算”构建开放共享的开发者生态。
更多推荐

所有评论(0)